Maison MDW - Bovenberg
Type

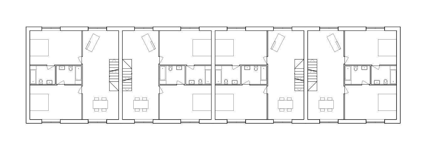
Construction + Renovation

Typology

Housing

Programme

Transformation of the Solvay Palace

Client

Private

Location

11950 Woluwe‑St‑Pierre

Conception

2019

Status

Competition

Surface

1 300 m²

Maison MDW - Bovenberg
Maison MDW - Bovenberg
Maison MDW - Bovenberg
Maison MDW - Bovenberg
Maison MDW - Bovenberg
Maison MDW - Bovenberg
Maison MDW - Bovenberg
Maison MDW - Bovenberg
Maison MDW - Bovenberg
Maison MDW - Bovenberg
Maison MDW - Bovenberg
Maison MDW - Bovenberg