


The project is located along Avenue Carton de Wiart in Jette, within the heart of an inner block that is nearing saturation. This dense fabric of buildings, typical of the Brussels context, presents an opportunity to explore architectural themes that are dear to us.
To clarify and reduce the density within the block, a void is created to free up the land and make room for a generous communal garden at ground level. However, this does not come at the expense of the existing structures. The decision is to preserve a trace of the memory of the existing industrial buildings.
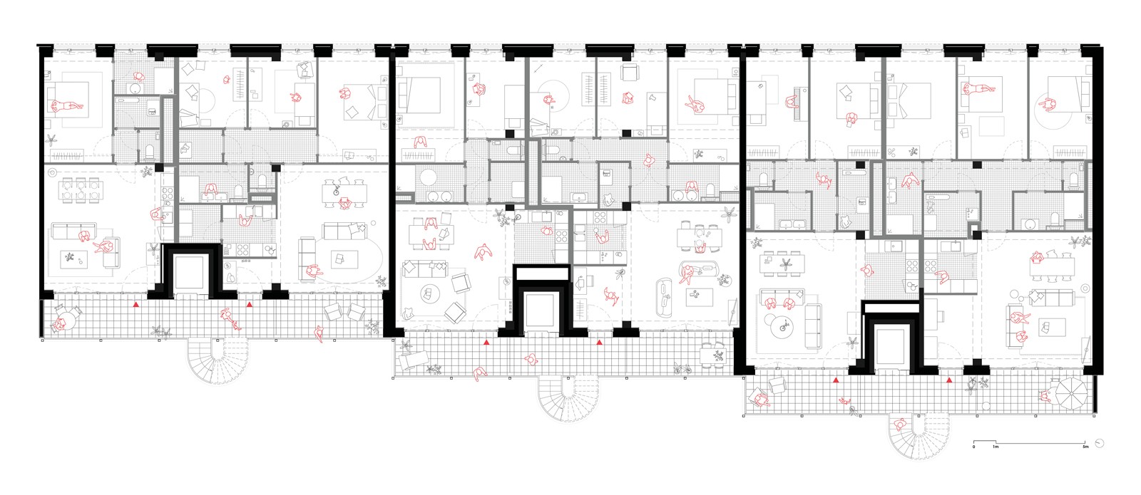
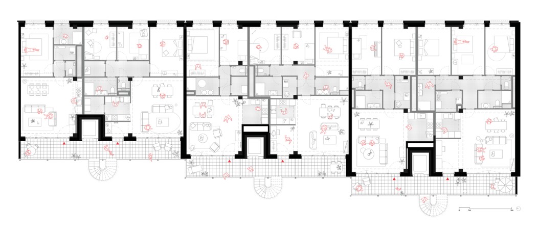
Around the perimeter of the block, the alignment of the building fronts takes precedence, giving the space a clear form. The three interventions along the street—comprising two collective housing buildings and a single-family house—play with the scale and urban morphology into which they are integrated.
Inside the block, three structures are preserved: a former warehouse with a flexible concrete post-and-beam structure, generous ceiling heights, and a walkway; a second building with a mixed structure of concrete columns, metal beams, and a wooden frame; and the final warehouse, obstructed on one of its facades, offering open, minimally partitioned floors.
The radical design of the circulation systems brings coherence to this diverse set of built forms. Positioned on the exterior, the circulation paths are always located on the inner side of the block. They create a transition between the collective and private spheres while maintaining constant views of the garden. Using various systems, such as stairwells on the facade and external passageways, these pathways become viewing platforms overlooking the communal garden.
Attention is also given to pedestrian walkways. Four porches provide access for residents, offering permeability and perspectives. They connect the city to the heart of the block, while also playing a role in community life by becoming places where residents can leave their bikes and access public facilities.
Thus, the five residential buildings are organized around a large communal garden with various opportunities for appropriation. At the center of this garden, one of the existing warehouses is transformed into a three-story community space, occupying a key position.
All of the homes are through-units, allowing for natural light and diverse views. To accommodate different family configurations, housing typologies ranging from studios to three-bedroom apartments are interwoven. On the ground floor, the apartments are raised to offer more privacy.
To provide coherence to this mix of buildings, a common material language has been adopted for the facades and external walkways. The facades feature a uniform surface of light-colored brick, asserting their simplicity, while the ironwork—an important architectural element—is powder-coated blue. This ensures that the circulation paths are clearly identifiable and become sculptural elements that contribute to the landscape of the inner block.
The same material language is applied to the renovated buildings, with the added elements echoing these design codes, while the preserved parts retain their existing red brickwork. This approach makes the distinction between what is new and what is retained clearly legible. In keeping with this method, the new community space stands out and asserts its new function through its use of white brick and red powder-coated joinery. In this way, the entire architectural expression of the project aims to showcase its inhabitants, offering them spaces they can personalize, placing them at the forefront of the architecture they inhabit.










Renovation + Construction
Housing
6 buildings, including 3 new-builds and 3 inner-block renovations
62 housing units, community facilities, car and bicycle parking and a 2,800m² communal garden
Av. Carton de wiart, 74 & Ch.ée de Jette, 409 – 1090 Jette
2021
2027
Tender
8 719 m²
JZH Partners, Coseas, Fonseca BV


