







Type
Renovation
Typology
Housing
Programme
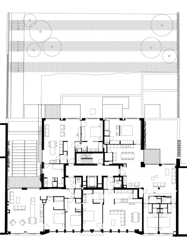
Renovation and extension of an office building in 20 housing units
Client
Location
Chaussée de Vleurgat 98 – 1050 Ixelles
Conception
2011
Completion
2015
Status
Built
Surface
3 300 m²
Architects
Ateliers Jean Nouvel + MDW Architecture
Photos
Filip Dujardin






