Renovation
Education
Extension of the Institut des Arts et Métiers
Rue de la Rosée - 1000 Brussels
2011
2016
Built
3 368 m²
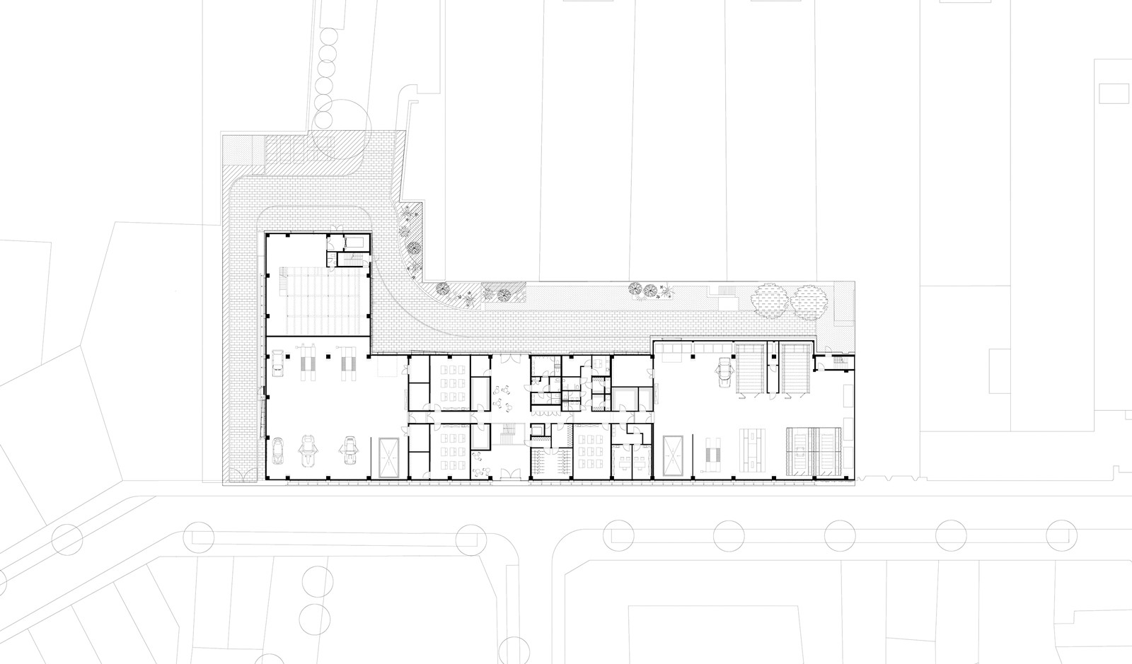
The extension to the Institut des Arts & Métiers (IAM) in Brussels blends discreetly into its urban environment, without seeking to impose a strong architectural statement. Located in a dense, mixed neighbourhood, the project aims to enhance the visibility and attractiveness of technical education and social advancement. By filling in a hollow space, it gives structure to the urban area and opens out onto the street thanks to large bay windows, enabling local residents to discover the activities taking place there and inspiring young people in their choice of career path.
The programme is divided into two parts: the IAM's infrastructure (mechanical workshops, classrooms, administrative offices) and that of the Centre for Advanced Technologies (CTA), which welcomes a varied public, encouraging intergenerational and cultural exchanges.
The building, designed on two levels, anticipates the possibility of it being raised in the future to meet changing educational needs. It has been designed to minimise the impact of future works and optimise costs. Designed in 2010 with a strong focus on environmental issues, it was recognised as an ‘Exemplary Building’ by Brussels Environment in 2011.









