Type

Renovation

Typology

Housing

Programme

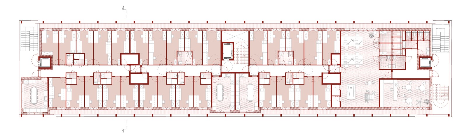
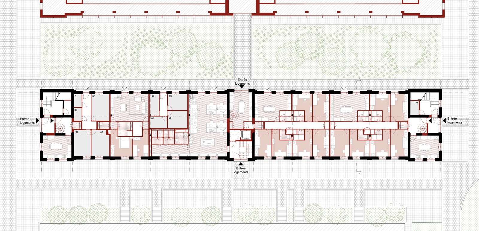
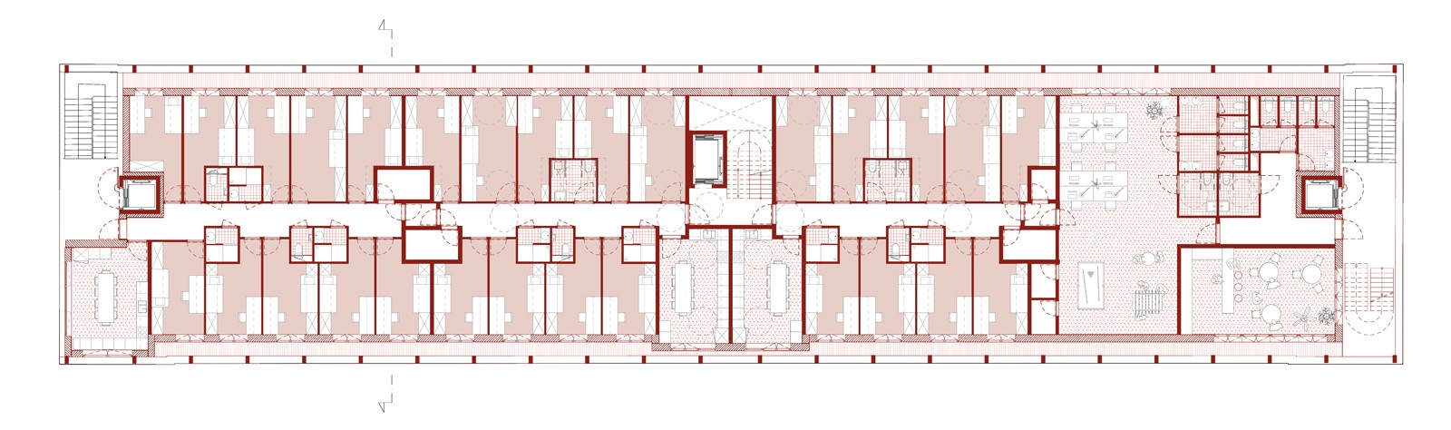
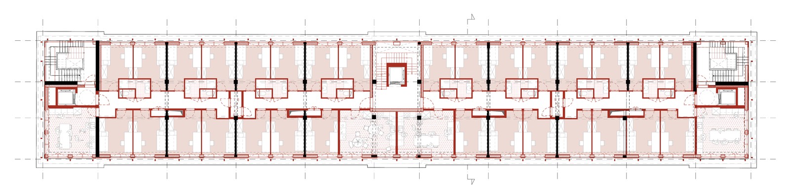
460 Student housing units, auditorium and shops

Client
Location

Avenue de la Couronne, 227 – 1050 Ixelles

Conception

2022

Status

Competition

Architects

BC Architects + MDW Architecture

Maison MDW - Usquare
Maison MDW - Usquare
Maison MDW - Usquare
Maison MDW - Usquare
Maison MDW - Usquare
Maison MDW - Usquare
Maison MDW - Usquare
Maison MDW - Usquare
Maison MDW - Usquare
Maison MDW - Usquare
Maison MDW - Usquare
Maison MDW - Usquare
Maison MDW - Usquare
Maison MDW - Usquare
Maison MDW - Usquare
Maison MDW - Usquare