

Construction
Housing
11 housing units
Parcodi sprl
Rue Victor Hugo – 1030 Schaerbeek
2020
Stopped
1 325 m²



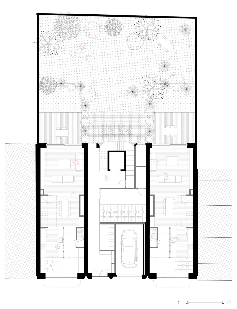
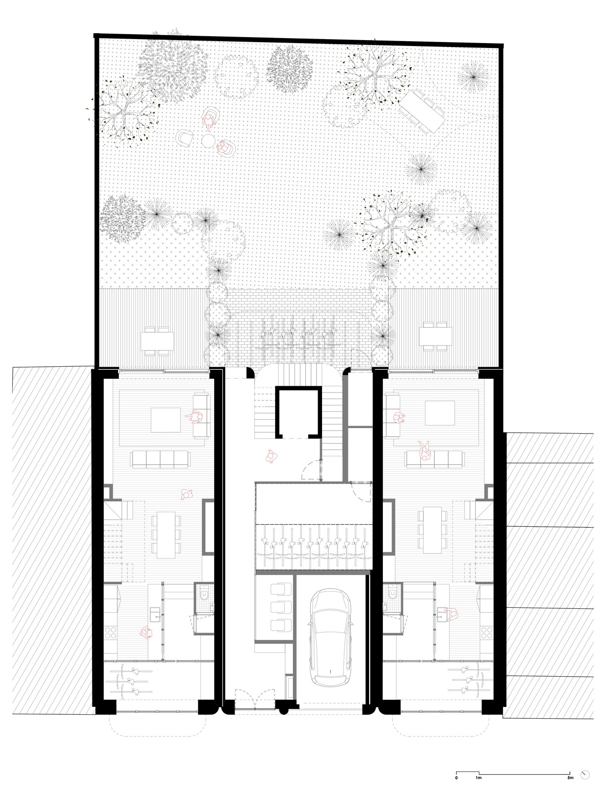
In this residential neighborhood of Brussels, between Dailly and Plasky, the project involves redeveloping three plots and their inner block into a single building with 11 apartments and underground parking. Through a process of subtraction, the land at the heart of the block is cleared of its abandoned warehouses, which were previously used as garages, to make space for a communal garden, adjacent to two private gardens. This intervention not only densifies the plot and reshapes the block into a clearer form but, most importantly, provides the neighborhood with a breath of fresh air.
The facades of the Brussels houses along Rue Victor Hugo feature a variety of materials: red bricks, light-colored bricks, render, and stone. On the plots across from the project, the buildings are slightly taller, with more elaborate facades, and red brick predominates. Among these is the Schaerbeek hostel, with its varied brickwork, staircases integrated into the facade that subdivide the volume, and red-toned joinery.
The division of our building into three bays serves multiple purposes: it responds architecturally to the street context, subtly integrating the facade into its surroundings; it divides the volume into three entities at a scale closer to the neighboring houses; and it clearly exposes the programmatic logic of the project. In this way, the design leverages its context while maintaining a distinctive architectural presence.
This division into three also reflects the internal organization of the building. The facade communicates the composition of the building. The two bays with overhanging terraces correspond to the two-bedroom apartments, while the bioclimatic loggias in the central bay are for the one-bedroom apartments. On the ground floor, a through hall provides direct access to the garden.
At the rear, the facade is divided again, this time in two, by the external staircase: wide, central, and with deep landings, it creates a strong connection with the garden. In the bedrooms, this link to the outdoors is provided by wide thresholds, which act as a liveable space, where one can sit, place a plant, a book, or a cup of tea, and enjoy the tranquility of the inner block.
In keeping with a balance with the existing buildings, the materials used in the project harmonize with the surrounding architecture. The light-colored brick is in tune with the even-numbered side of the street. The aluminum frames and ironwork, painted in a shade of red, echo the joinery of the Schaerbeek hostel opposite. The depth created by the balconies and loggias comes to life, providing spaces that accommodate various uses over time. The facade thus becomes an interface between the private interior and the public street.



