Maison MDW - City Dox
Maison MDW - City Dox
Maison MDW - City Dox
Maison MDW - City Dox
Maison MDW - City Dox
Maison MDW - City Dox

As the population of the Brussels-Capital region continues to grow, the land available along the canal represents a strategic area for accommodating the city’s demographic expansion, making this axis a key player in its development. The numerous projects emerging along this axis are gradually shaping a new urban landscape. The canal’s built edge will complement the various other faces that already characterize Brussels, such as the European Quarter and the central boulevards.

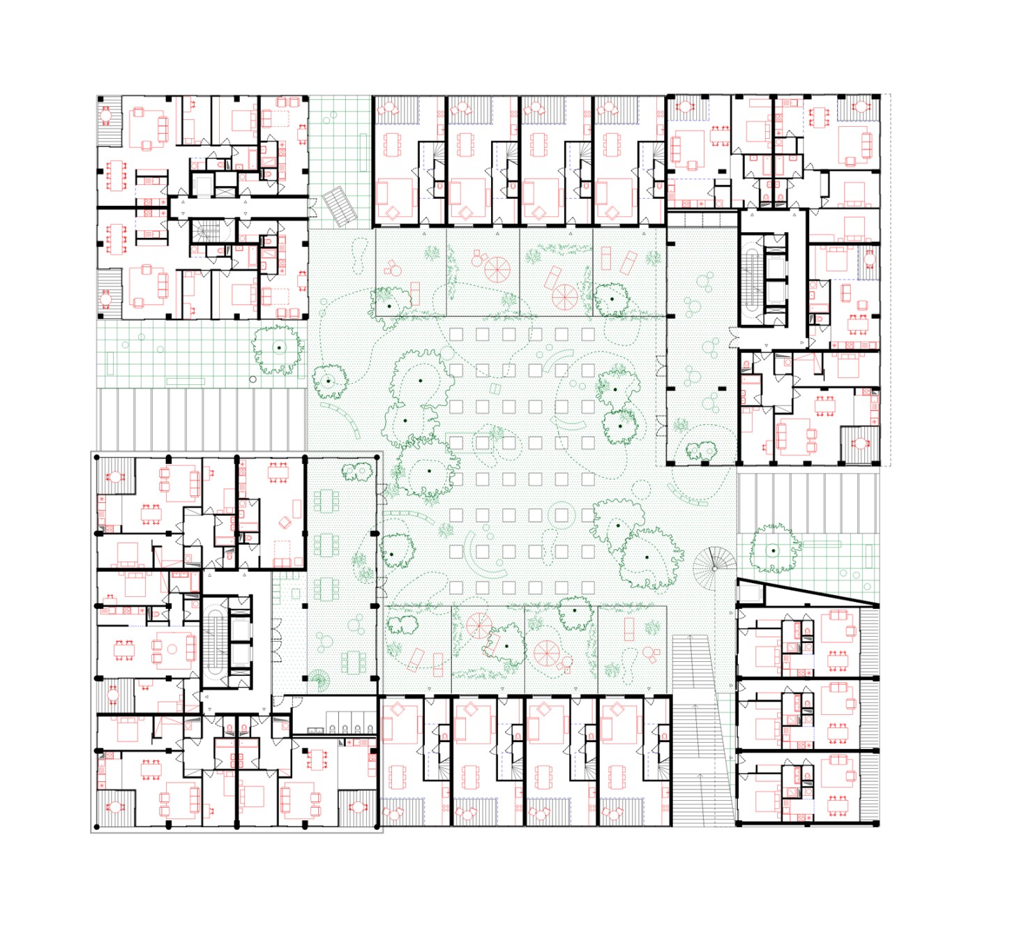
The competition brief required the combination of a large-scale housing development with productive ground floors to meet housing needs while continuing the area’s productive function. Such a programmatic combination immediately raises several spatial questions and demands typological reflection. Our research was guided by historical examples found in the canal zone. These examples reveal both the potential and challenges arising from the coexistence of productive and residential functions. Beyond the issues of nuisances and logistical difficulties they highlight, they demonstrate that maintaining a ring of street-facing housing helps preserve the urban quality of the district.

By presenting itself as a series of distinct buildings, anchored to the ground and grouped around a through-going industrial hall, the project avoids the pitfall of slab-based architecture and ensures a rich connection with the public space. The decision to maximize the height of two prominent structures while keeping the other buildings lower emerged as a solution that reduces overlooking and guarantees good light penetration throughout the site. Furthermore, this configuration opens up expansive views of the surrounding landscape. The distinctiveness of the buildings also offers a wide range of living options.

The intention to create a connection between users and buildings, between living spaces and productive areas, and between architecture and the landscape was central to the project’s design from the beginning. This goal is realized in various aspects of the project. The hall, built from CLT wood, reminiscent of nineteenth-century industrial halls, features double-height spaces and is extensively open to the surroundings. The housing-workshops, located in the plinths, contribute to activating the ground floors. The highly glazed apartments maintain a strong connection with the landscape. Finally, the suspended garden, a true communal space, is directly accessible from the public space, which enjoys a privileged relationship with it.

Along the canal, the project unfolds as a sequence of buildings operating on a dual scale. First, the six higher buildings form a tall skyline on a metropolitan scale, addressing the canal and the city; second, the six lower buildings create a more domestic skyline, establishing a relationship more suited to the neighborhood scale. These clear differences in height, the close connection of the blocks with the ground, and their high degree of permeability are choices that allow the project to evolve into a true urban district.

( read more )
Maison MDW - City Dox
Maison MDW - City Dox
Maison MDW - City Dox
Type

Construction

Typology

Housing

Programme

Masterplan, 181 housing units & productive groundfloor

Client
Location

Ilot 4 à 6, Bassin de Biestebroeck – 1070 Anderlecht

Conception

2019

Status

Competition

Surface

11 990 m² + 13 218 m²

Architects

Central + MDW Architecture + BUUR

Maison MDW - City Dox
Maison MDW - City Dox
Maison MDW - City Dox
Maison MDW - City Dox