Building H - R+4
Building D - R+3
Auditorium
Type

Renovation

Typology

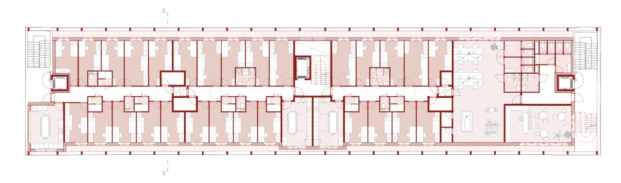
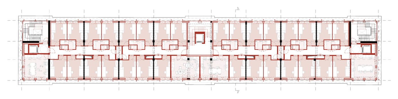
Housing

Programme

460 Student housing units, auditorium and shops

Client
Location

Avenue de la Couronne, 227 – 1050 Ixelles

Conception

2022

Status

Competition

Architects

BC Architects + MDW Architecture

Building D - Housing Unit
Maison MDW - Usquare
Maison MDW - Usquare
Maison MDW - Usquare
Building I - R+3
Maison MDW - Usquare
Entrance Study
Living Principle
Urban Farm & Shops
Maison MDW - Usquare
Building D - Groudfloor
Skybar
Maison MDW - Usquare