Maison MDW - Solbosch
Maison MDW - Solbosch
Maison MDW - Solbosch
Maison MDW - Solbosch
Maison MDW - Solbosch
Maison MDW - Solbosch
Maison MDW - Solbosch
Elevation on Adoplhe Buyl Avenue
Maison MDW - Solbosch
View over Brussels from the heights of Ixelles
Maison MDW - Solbosch
Maison MDW - Solbosch
Maison MDW - Solbosch
Maison MDW - Solbosch
Type

Renovation + Construction

Typology

Housing

Programme

Renovation and extension in office, medical house and housing

Client

Immo du Solbosch

Location

Avenue Adolphe Buyl – 1050 Ixelles

Conception

2016

Completion

2024

Status

Built

Surface

4 300 m²

Consultants

BDS + Sweco + Securisan + D2S

Maison MDW - Solbosch
Maison MDW - Solbosch

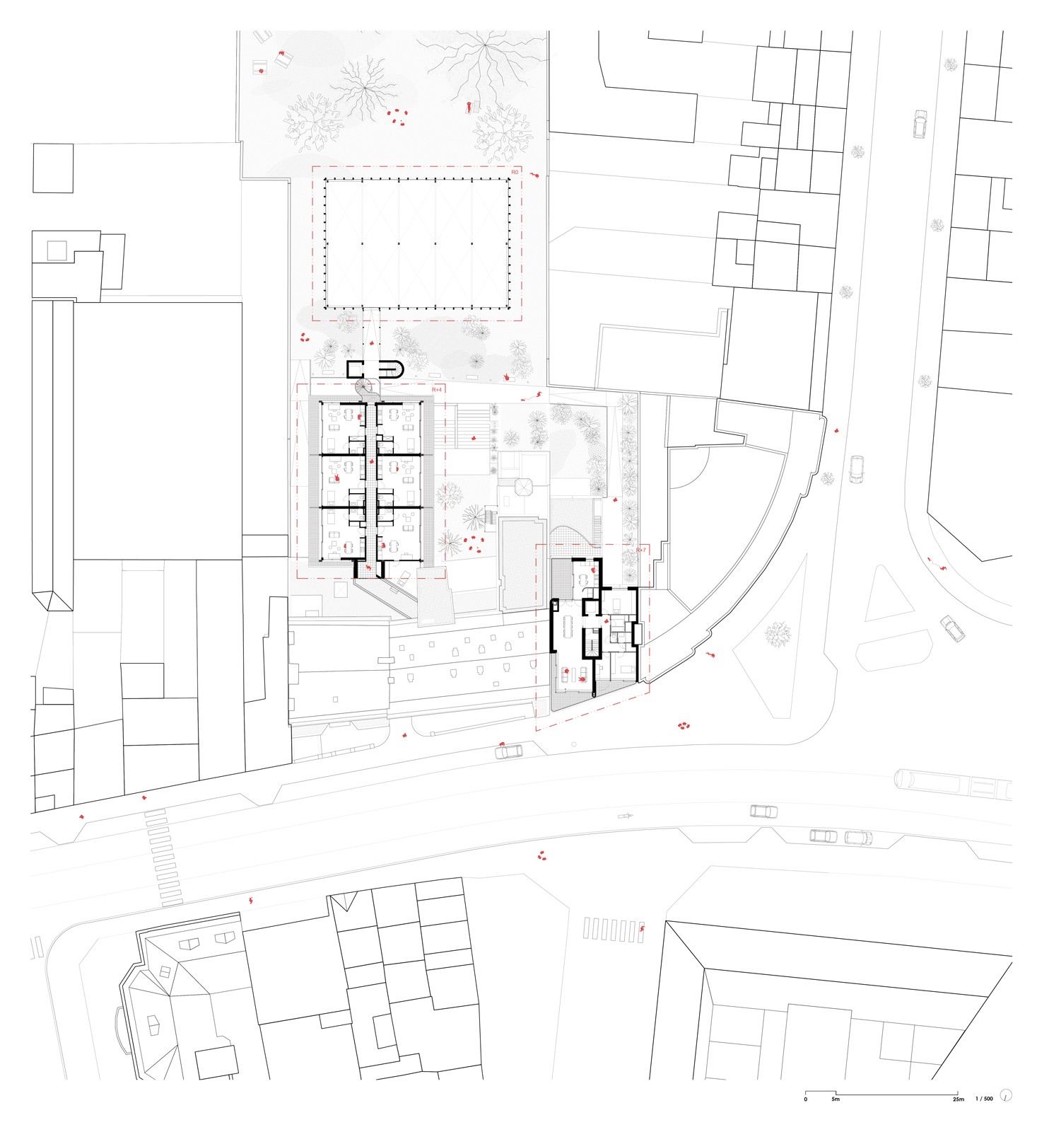
As you pass 110 Avenue Adolphe Buyl, opposite the Université Libre de Bruxelles, a strange gap becomes visible, created by two almost-blind gables, leading to nothing but a small parking area. To the left of this vacant plot stands the Solbosch medical center, a neo-Gothic gem; to the right is the Solbosch residence, facing Square Dewez and forming an arch where it meets Avenue Brillat-Savarin.

The project is based on three interventions :

First, the volume of the medical center is extended by one additional level within the block. This is a lightweight wooden structure that is supported by the existing framework.

Secondly, the existing pavilion at the back of the site is replaced by a new one, with architecture better suited to the medical center's needs, thus improving the quality of its services. Moreover, the new pavilion will be incorporated into a landscaping plan that connects with the park, ensuring continuity with the surrounding green spaces.

Finally, through a play of symmetry around the corner building, a seven-storey apartment block is constructed between the two waiting gables, closing the block. This volume serves as a geometric and chromatic bridge between the flanking buildings, resolving the existing imbalance between them. It asserts its pivotal role and completes the urban sequence.

Thus, the addition of these three entities is essentially a delicate operation, addressing both urban and landscape challenges—such as the relationship with public space, the integration with adjacent buildings, and the connection to the rear park—as well as more subtle architectural issues requiring a fine-tuned approach. All this while scrupulously preserving the heritage and biodiversity already present on the site.

( read more )
Maison MDW - Solbosch