Maison MDW - Cité Vandeuren
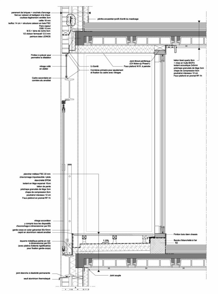
Maison MDW - Intricate Constructions
Maison MDW - Intricate Constructions

We have the capacity to develop highly complex projects from design to construction. Our agency stands out for its efficient working methods and rigorous technical approach, with a total commitment (organisation, communication, planning, budget, etc.) to complex projects. By addressing the realities of construction, we anticipate technical constraints, succeed in dealing with the unexpected and ensure quality while respecting deadlines and budgets. Our ability to reconcile innovation and pragmatism means that we can transform each ambitious project into a lasting, functional achievement.

Maison MDW - Parlement
Maison MDW - Relais
Intricate
Constructions
Maison MDW - Intricate Constructions
Maison MDW - Intricate Constructions
Maison MDW - Intricate Constructions
Maison MDW - Solbosch
Maison MDW - Intricate Constructions